Rif: 2/0161
IMPRUNETA
FIRENZE
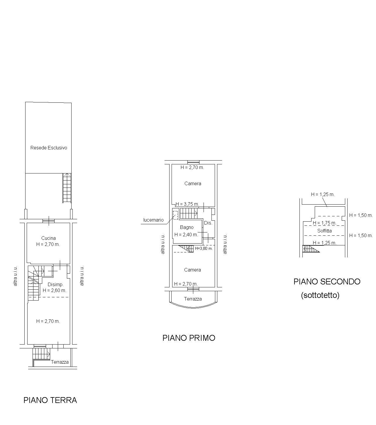
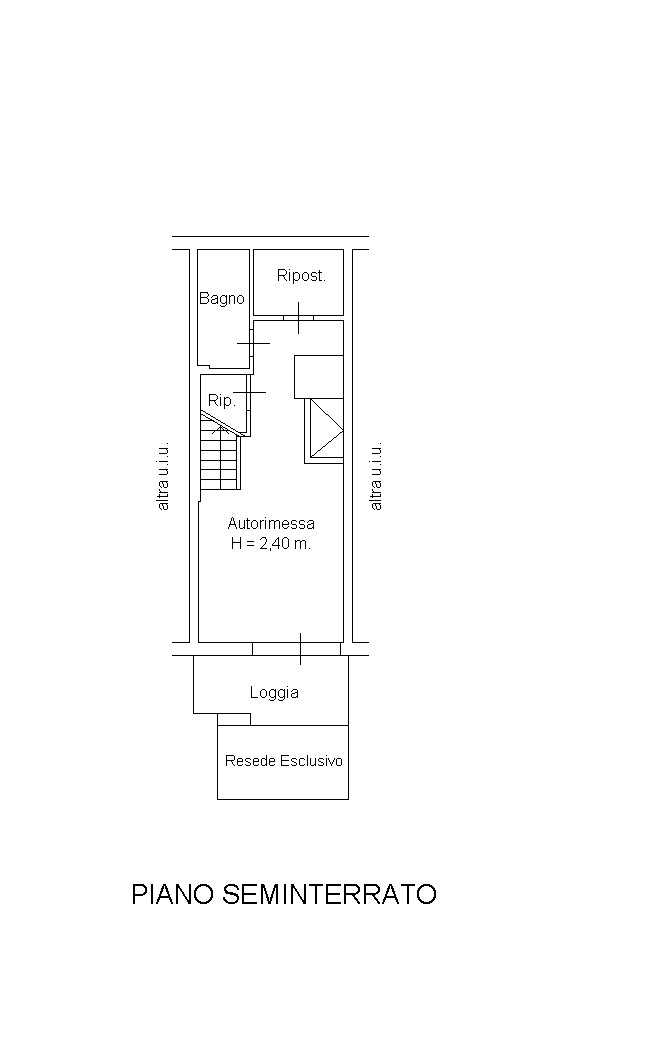
Impruneta, località Ferrone, in posizione collinare panoramica, vendesi villetta terratetto a schiera di recente costruzione che si sviluppa su tre livelli per complessivi circa 110mq oltre giardino di 40mq e posto auto esterno. L'immobile, a cui si accede attraverso ingresso indipendente da scala esterna, si compone, al suo interno, da soggiorno dotato di stufa a legna con affaccio su terrazzo frontale, cucina con accesso diretto al giardino tergale, due camere matrimoniali al piano primo con servizio oltre secondo terrazzo e soffitta praticabile utile come ampio ripostiglio. Al piano seminterrato, ma piano terreno a valle con accesso diretto dalla strada, ampio garage taverna con servizio interno, zona lavanderia e caminetto. Interni tutti in ottime condizioni con impiantistica moderna ed efficiente (immobile in classe energetica A). Predisposizione impianto aria condizionata. Ottimo oggetto pronto per essere abitato. Ben accessoriato.
La nostra agenzia, presente sul mercato dal 1976, vanta una lunga esperienza nella vendita e negli affitti di qualunque tipo di immobili: appartamenti, monolocali, bilocali, mini appartamenti, villette, ville, rustici, casali, coloniche, porzioni di coloniche, immobili di prestigio uffici, negozi, fondi artigianali, commerciali, industriali e magazzini. Ci troviamo in Piazza Umberto I a Grassina e dopo tanti anni sul campo siamo esperti nel territorio di Grassina, nel Comune di Bagno a Ripoli, nella zona del Chianti, nella città e nella provincia di Firenze.
La nostra agenzia, presente sul mercato dal 1976, vanta una lunga esperienza nella vendita e negli affitti di qualunque tipo di immobili: appartamenti, monolocali, bilocali, mini appartamenti, villette, ville, rustici, casali, coloniche, porzioni di coloniche, immobili di prestigio uffici, negozi, fondi artigianali, commerciali, industriali e magazzini. Ci troviamo in Piazza Umberto I a Grassina e dopo tanti anni sul campo siamo esperti nel territorio di Grassina, nel Comune di Bagno a Ripoli, nella zona del Chianti, nella città e nella provincia di Firenze.
Consistenze
| Descrizione | Superficie | Sup. comm. |
|---|---|---|
| Principali | ||
| Immobile - piano terra | 38 Mq | 38 Mqc |
| Immobile - 1° piano | 37 Mq | 37 Mqc |
| Box/Garage - seminterrato | 36 Mq | 18 Mqc |
| Giardino/Resede | 40 Mq | 4 Mqc |
| Terrazza - piano terra | 4 Mq | 1 Mqc |
| Terrazza - 1° piano | 4 Mq | 1 Mqc |
| Posto auto | 14 Mq | 4 Mqc |
| Soffitta - 2° piano | 10 Mq | 2 Mqc |
| Totale | 105 Mqc | |
