Rif: 2/0159
GREVE IN CHIANTI
FIRENZE
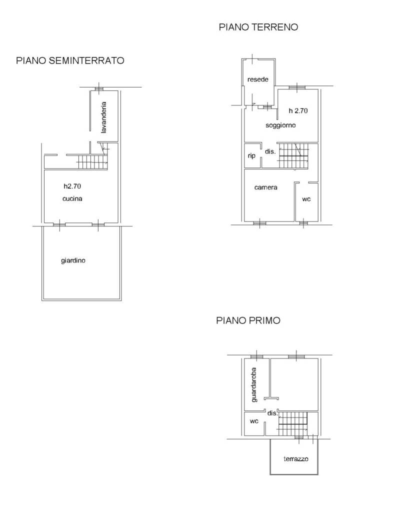
Strada in Chianti, ottima zona residenziale con affacci nel verde, villetta terratetto a schiera su tre livelli di complessivi circa 135mq commerciali e dotata di giardino, terrazza abitabile, cantina, garage e posto auto. L'immobile, con ingresso indipendente da resede esterno lastricato di proprietà si compone al suo interno di soggiorno, grande cucina abitabile con predisposizione per stufa e con accesso diretto al giardino esterno di circa 40mq, due camere matrimoniali, studio/cameretta, due servizi, ripostiglio (con predisposizione per un eventuale terzo servizio) e grande terrazza abitabile al piano mansarda di circa 12mq. Completa la proprietà ampio garage e cantina accessibili direttamente dall'interno dell'abitazione e un grande vano tecnico come eventuale ulteriore ampio rimessaggio. Posto auto esterno. Interni in ottime condizioni frutto di una costante e attenta manutenzione. Aria condizionata, termosingolo e predisposizione per stufa. Video disponibile anche sul nostro canale you tube https://youtu.be/skH87RsX2gI?si=gVhITvmXQSgIShH2
La nostra agenzia, presente sul mercato dal 1976, vanta una lunga esperienza nella vendita e negli affitti di qualunque tipo di immobili: appartamenti, monolocali, bilocali, mini appartamenti, villette, ville, rustici, casali, coloniche, porzioni di coloniche, immobili di prestigio uffici, negozi, fondi artigianali, commerciali, industriali e magazzini. Ci troviamo in Piazza Umberto I a Grassina e dopo tanti anni sul campo siamo esperti nel territorio di Grassina, nel Comune di Bagno a Ripoli, nella zona del Chianti, nella città e nella provincia di Firenze.
La nostra agenzia, presente sul mercato dal 1976, vanta una lunga esperienza nella vendita e negli affitti di qualunque tipo di immobili: appartamenti, monolocali, bilocali, mini appartamenti, villette, ville, rustici, casali, coloniche, porzioni di coloniche, immobili di prestigio uffici, negozi, fondi artigianali, commerciali, industriali e magazzini. Ci troviamo in Piazza Umberto I a Grassina e dopo tanti anni sul campo siamo esperti nel territorio di Grassina, nel Comune di Bagno a Ripoli, nella zona del Chianti, nella città e nella provincia di Firenze.
Consistenze
| Descrizione | Superficie | Sup. comm. |
|---|---|---|
| Principali | ||
| Immobile - piano terra | 30 Mq | 30 Mqc |
| Immobile - piano rialzato | 50 Mq | 50 Mqc |
| Immobile - 1° piano | 34 Mq | 34 Mqc |
| Box/Garage - seminterrato | 15 Mq | 8 Mqc |
| Cantina - seminterrato | 10 Mq | 2 Mqc |
| Terrazza - 2° piano | 10 Mq | 3 Mqc |
| Giardino/Resede | 44 Mq | 4 Mqc |
| Posto auto | 12 Mq | 4 Mqc |
| Totale | 135 Mqc | |
