Rif: 1/0792
BAGNO A RIPOLI
FIRENZE
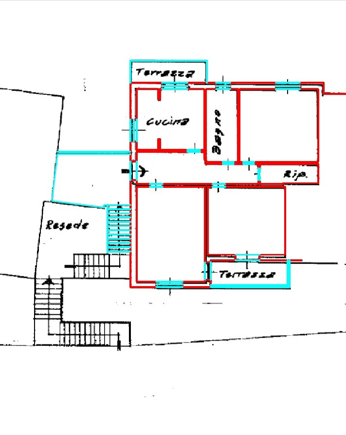
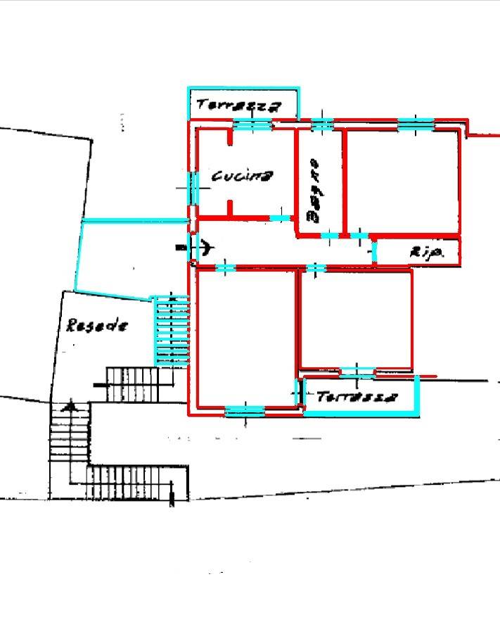
Grassina, zona collinare panoramica in contesto residenziale immerso nel verde, vendesi in edificio bifamiliare ampio appartamento posto al piano primo di 4 vani di circa 90mq oltre due terrazze panoramiche. L'immobile, a cui si accede da ingresso indipendente da scala esterna, al suo interno si compone di disimpegno con accesso al soggiorno con terrazzo frontale panoramico affacciato sul paese e all'ampia cucina abitabile con ulteriore terrazzo tergale affacciato nel verde. Da corridoio che separa la zona notte troviamo due camere matrimoniali, ripostiglio e bagno finestrato. Libero su tre lati l'appartamento è circondato dalla campagna e totalmente immerso nel verde e nella pace agreste. Interni in ottimo stato frutto di una costante e attenta manutenzione ma ormai datati e da rimodernare. Contesto residenziale con strada privata e ampia disponibilità di parcheggio. Ottimo oggetto familiare in piacevole contesto e con ottima privacy.
Video disponibile anche sul nostro canale youtube
La nostra agenzia, presente sul mercato dal 1976, vanta una lunga esperienza nella vendita e negli affitti di qualunque tipo di immobili: appartamenti, monolocali, bilocali, mini appartamenti, villette, ville, rustici, casali, coloniche, porzioni di coloniche, immobili di prestigio uffici, negozi, fondi artigianali, commerciali, industriali e magazzini. Ci troviamo in Piazza Umberto I a Grassina e dopo tanti anni sul campo siamo esperti nel territorio di Grassina, nel Comune di Bagno a Ripoli, nella zona del Chianti, nella città e nella provincia di Firenze.
Video disponibile anche sul nostro canale youtube
La nostra agenzia, presente sul mercato dal 1976, vanta una lunga esperienza nella vendita e negli affitti di qualunque tipo di immobili: appartamenti, monolocali, bilocali, mini appartamenti, villette, ville, rustici, casali, coloniche, porzioni di coloniche, immobili di prestigio uffici, negozi, fondi artigianali, commerciali, industriali e magazzini. Ci troviamo in Piazza Umberto I a Grassina e dopo tanti anni sul campo siamo esperti nel territorio di Grassina, nel Comune di Bagno a Ripoli, nella zona del Chianti, nella città e nella provincia di Firenze.
Consistenze
Descrizione | Superficie | Sup. comm. |
---|---|---|
Principali | ||
Immobile - 1° piano | 90 Mq | 90 Mqc |
Terrazza - 1° piano | 5 Mq | 2 Mqc |
Terrazza - 1° piano | 6 Mq | 2 Mqc |
Totale | 94 Mqc |