Rif: 6/0032
GREVE IN CHIANTI
FIRENZE
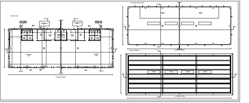
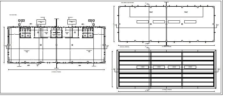
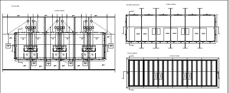
San Polo in Chianti, nel comune di Greve in Chianti, vendesi due lotti di terreno edificabile ad uso artigianale industriale. I due lotti pianeggianti di circa 7000mq consentono la costruzione di un immobile artigianale di circa 2200mq. Ottima fattibilità. Disponibili le documentazioni necessarie. Buona viabilità. Basse spese di urbanizzazione. Possibilità di acquisto di un ulteriore lotto adiacent per un complessivo di 3400mq di capannoni da realizzare. Possibilità acquisto porzione o porzioni di detti lotti al finito tramite accordo di costruzione da parte del venditore. Ottima opportunità per l'azienda che necessita di impostare la costruzione secondo le sue specifiche esigenze.
La nostra agenzia vanta un'esperienza di tre decenni nella vendita e negli affitti di qualunque tipo di immobili:
appartamenti, monolocali, bilocali, mini appartamenti, villette, ville, rustici, casali, coloniche, porzioni di coloniche, uffici, negozi, fondi artigianali, commerciali, industriali e magazzini in Grassina, nel comune di Bagno a Ripoli, nella zona del Chianti, nella città e nella provincia di Firenze.
La nostra agenzia con esperienza e professionalità può offrire ai propri clienti valutazioni immobiliari gratuite di qualunque tipo, consulenze patrimoniali, di investimento e all'occorenza metterli in contatto con affermati professionisti di settore.
Ci potete trovare nella piazza principale di Grassina, antico borgo di lavandai alle porte di Firenze, adagiato fra le colline del Chianti in Toscana.
Nel nostro sito potete trovare tutti i dettagli delle nostre proposte immobiliari aggiornate
La nostra agenzia vanta un'esperienza di tre decenni nella vendita e negli affitti di qualunque tipo di immobili:
appartamenti, monolocali, bilocali, mini appartamenti, villette, ville, rustici, casali, coloniche, porzioni di coloniche, uffici, negozi, fondi artigianali, commerciali, industriali e magazzini in Grassina, nel comune di Bagno a Ripoli, nella zona del Chianti, nella città e nella provincia di Firenze.
La nostra agenzia con esperienza e professionalità può offrire ai propri clienti valutazioni immobiliari gratuite di qualunque tipo, consulenze patrimoniali, di investimento e all'occorenza metterli in contatto con affermati professionisti di settore.
Ci potete trovare nella piazza principale di Grassina, antico borgo di lavandai alle porte di Firenze, adagiato fra le colline del Chianti in Toscana.
Nel nostro sito potete trovare tutti i dettagli delle nostre proposte immobiliari aggiornate
Consistenze
| Descrizione | Superficie | Sup. comm. |
|---|---|---|
| Principali | ||
| Terreno - piano terra | 7.000 Mq | 7.000 Mqc |
| Totale | 7.000 Mqc | |
